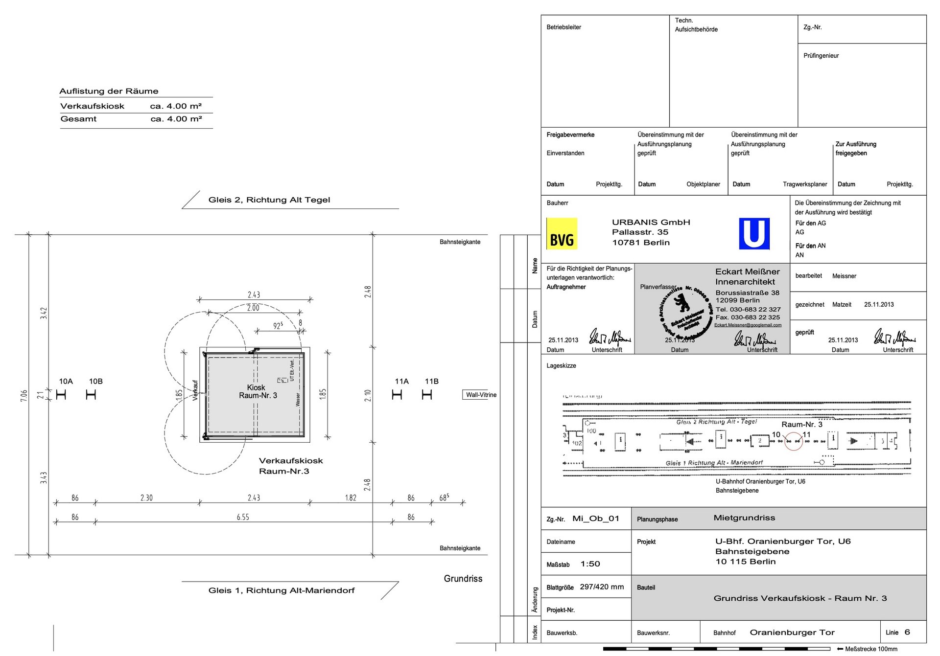
Backshop im U-Bahnhof Oranienburger Tor
Adresse
Oranienburger Tor
Mitte
Mietbeginn 01.10.2024
Nutzungsart Einzelhandel
Fläche 9.3 m²
Eckdaten
- Bezirk
- Mitte
- Linie
- U6
- Etage
- EG
Kosten
- Miete
- Miete verhandelbar EUR netto kalt, Umsatzmiete
- Kaution
- 6 Nettokaltmieten
Wie sich die Miete zusammensetzt und alle weiteren Informationen finden Sie auf unserer Seite Häufige Fragen.
Lage
Der U-Bahnhof Oranienburger Tor ist eine Station der U-Bahn Linie U6 im Berliner Ortsteil Mitte. Er befindet sich 4,90 Meter unter der Friedrichstraße auf Höhe der Claire-Waldoff-Straße.
Medien
- Stromanschluss
- Wasseranschluss
Ausstattung
- Abluftsystem
- Toilette im U-Bahnhof
- Verkaufstheke
- Beleuchtung
- Getränkekühlschrank
- Fettabscheider
- Spüle
- Ablagen
Objektbeschreibung
Der Verkaufspavillon befindet sich auf dem Bahnsteig des U-Bahnhofes. Am Anfang des Bahnsteigs befindet sich der Vorbereitungsraum, welcher mit vermietet wird. Die WC´s auf dem U-Bahnhof im Gleisgang können während der Mietdauer mit genutzt werden.