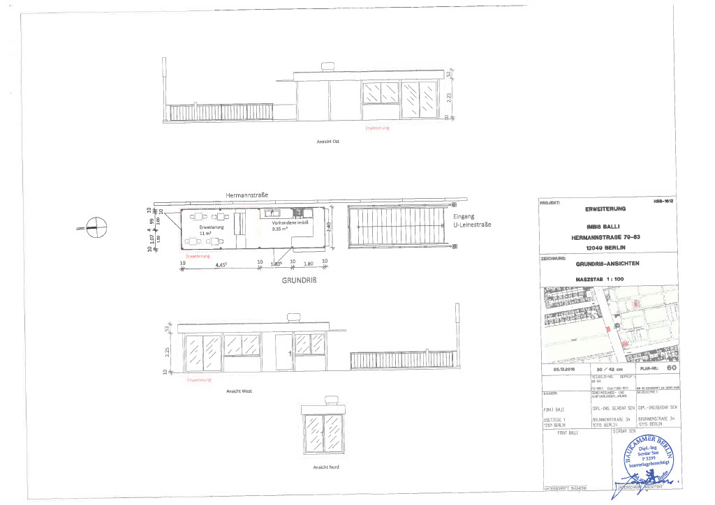
Gewerbeobjekt am U-Bahnhof Leinestraße – Imbissfläche mit Lagerraum
Adresse
Leinestraße
Neukölln
Mietbeginn 01.01.2026
Nutzungsart Imbiss
Fläche 8.18 m²
Eckdaten
- Bezirk
- Neukölln
- Linie
- U8
Kosten
- Miete
- Auf Anfrage
Wie sich die Miete zusammensetzt und alle weiteren Informationen finden Sie auf unserer Seite Häufige Fragen.
Lage
Direkt am Eingang des U-Bahnhofs Leinestraße befindet sich dieses kompakte Gewerbeobjekt, das sich ausschließlich für gastronomische Nutzung eignet. Der Bahnhof befindet sich im Ortsteil Neukölln, unter der Hermannstraße, zwischen Leine- und Okerstraße.
Die zentrale Lage garantiert eine hohe Frequenz an Laufkundschaft und bietet optimale Sichtbarkeit für Ihr Konzept.
Objektbeschreibung
Flächenaufteilung:
- Imbissfläche: 8,18 m² – ideal für den direkten Verkauf am Eingang des U-Bahnhofs
- Lagerraum: 27,67 m² – befindet sich im U-Bahnhof und bietet ausreichend Platz für Vorräte und Ausstattung
Mögliche gastronomische Konzepte:
- Streetfood-Imbiss (Falafel, Döner, Wraps, Burritos)
- Asiatische Schnellküche (Sushi-to-go, vietnamesische Sommerrollen, Ramen im Becher)
- Snack-Bar (Pommes, Currywurst, Hotdogs)
- Gesunde To-go-Konzepte (Salatbowls, Smoothies, frische Säfte)
Lagevorteile:
- Hohe Passantenfrequenz durch die direkte Anbindung an den U-Bahnhof
- Sichtbarkeit und Erreichbarkeit unmittelbar am Eingang
Urbanes Publikum mit hoher Nachfrage nach schnellen, praktischen Gastronomieangeboten
Interesse? Bei Interesse können Sie sich direkt hier auf der Homepage bewerben.